ご希望日時を
指定ください
指定ください
右京区常盤一ノ井町 中古戸建 2LDK 2,380万円
京都市右京区常盤一ノ井町
価格 2,380万円
間取 2LDK
御室川沿いある物件、物件前に建物が無く開放感が味わえます。御室川沿いはあまり知られていない桜の名所です、ライフ太秦店近くでは桜並木あり桜の時期には買い物がてらお花見がお勧めです。お買物はマツモト新丸太町店徒歩7分、ライフ太秦店徒歩10分。学校は常磐野小学校徒歩12分。
頭金0円、 借入期間35年、 金利0.775% で住宅ローンを利用した場合のシミュレーション
- ボーナス払
- 円(年2回)
- 月返済額
- 64,717 円/月
- 管理費
- --- 円/月
- 修繕費
- --- 円/月
- 月額合計金額
- 64,717 円
※ボーナス払の金額を変更してシミュレーションできます。(ボーナス返済割合は50%以内にしてください)
※シミュレーション結果は、借入を保証するものではありません。
※金利は、金融機関やお客様の諸条件により異なります。
※住宅ローンを利用できない物件もあります。
※管理費・修繕費以外に月額費用負担が必要な場合があります。
※シミュレーション結果は、借入を保証するものではありません。
※金利は、金融機関やお客様の諸条件により異なります。
※住宅ローンを利用できない物件もあります。
※管理費・修繕費以外に月額費用負担が必要な場合があります。
この物件の資料請求(無料)
075-864-0066
【情報更新日:2026年02月16日】 【次回更新予定日:2026年03月09日】
| 種目 | 中古戸建 | 物件番号 | No 24668 |
|---|---|---|---|
| 価格 | 2,380万円 | 間取 | 2LDK |
| 物件名 | 右京区常盤一ノ井町 中古戸建 2LDK | ||
| 所在地 | 京都市右京区常盤一ノ井町 住所から地図を調べる |
||
| 交通 |
JR 花園駅まで、徒歩10分 京福 常盤駅まで、徒歩11分 徒歩分数は80m/分で計算しています
|
||
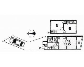
| 間取詳細 | |||
| 土地面積 | 73.52m² (22.23坪) | 建物面積 | 59.94m² (18.13坪) |
| 建ぺい率 | 60 % | 容積率 | 200 % |
| 現況 | 空家 | 駐車場 | 有 |
| 小学校区 | 常磐野小学校 | 中学校区 | 蜂ヶ岡中学校 |
| 構造 | 木造 | 用途地域 | 第一種中高層住居専用地域 |
| 階建 | 2階建 | 取引態様 | 仲介 |
| 築年月 | S54/11(1979/11)築46年 | 引渡時期 | 相談 |
| 接道 | 北東側 幅員6.2m 接面3.1m(公道) | ||
| 特色 | 1階34.02平米 2階25.92平米、駐車1台可、2025年9月改装済:水廻り(システムキッチン・浴室・洗面台・トイレ/建具交換/フローリング張替/クロス貼替/土間新設/電気工事/外壁塗装/ハウスクリーニング等)、南側土間有 | ||
| アイコン | |||
かんたん資料請求お客様の連絡先
お電話でも資料請求できます。
075-864-0066
075-864-0066










